イベント情報
event info
寝屋川モデルハウス完成見学会!
- モデルハウス見学
- 2025.10.27

寝屋川市葛原新町モデルハウス
2025年5月24日OPEN!!
変形地を可能性に変える、暮らしを豊かにするジャパンディモデルハウス
完成見学会を随時開催しております!!
「パナソニック耐震住宅工法テクノストラクチャー」のお家をぜひご覧ください!
ご案内時間は、火曜日水曜日を除く10:00~16:00です。
※事前のご相談で、時間外のご案内も可能な場合があります。
完全予約制となりますので、お気軽にお問い合わせください!
申込フォームはこのページの一番下にあります↓↓↓
お電話のご予約はこちらから→0120-49-1201
モデルハウス所在地:大阪府寝屋川市葛原新町8-19(お車でもお越し頂けます!)
テクノストラクチャー構造とは?
木と鉄の複合梁「テクノビーム」と高強度オリジナル接合金具を使用し、
さらに構造計算や耐震実験など、最先端の技術を導入した工法が「テクノストラクチャー工法」。
木造と鉄骨造のいいとこどりをした、パナソニック独自工法です。

「変形地を可能性に変える、ジャパンディの新しい暮らし」
変形地を最大限に活かし、デザイン性と機能性を両立したモデルハウスです。
和の落ち着きと北欧の洗練を融合させた「ジャパンディスタイル」を採用し、
光や空間を巧みに使った開放的で心地よい住まいを実現しました。
「ここまでできる!」と驚く柔軟な間取りや最新の省エネ技術を備え、都市型住宅の可能性を広げる提案となっています。
この家で、新しい暮らしの形をぜひ体感してください。
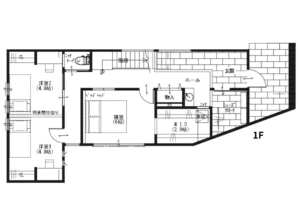
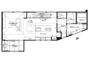
 LDK
LDK
 寝室
寝室 玄関
玄関
こだわりポイント
性能ポイント
★高耐震・・・耐震等級3、台風等級2 最高レベルを取得
★制震ダンパーEX・・・耐震+制震で、繰り返し起こる震度7の巨大地震後に住み続けられる家
★太陽光搭載・・・電気代削減になり、災害時にも役立つ、クリーンなエネルギー
★ZEH住宅(断熱等級6)・・・創エネ・省エネ・高断熱で、エコロジーで家計に優しい、ZEHをご提案
★エアテクトシステム(換気システム)導入・・・PM2.5レベルまで除去するフィルターで快適な室内
間取りポイント
★敷地の形を生かした間取り・・・設計士が、その土地にしかできない提案を行います
★勾配天井のある開放的な2階リビング・・・屋根の形を生かして大空間を演出
★2WAYシューズクローク・・・ちらかりがちな玄関をすっきり
★将来仕切れる子供部屋・・・お子様の成長に合わせてフレキシブルに
★乾太くん付ランドリールーム・・・共働き子育て世代にぴったり!パワフルなガス乾燥機で家事の時短に
 
 
他にも魅力がたくさんのモデルハウスです!
ぜひ遊びに来て下さい😊
イベント申し込みフォーム
event application form
2028年12月31日に申し込みは締め切られます
